The Vista Towers of San Rafael
Throughout the development, you will find explanatory diagrams, detailed floor plans, construction sections, renders, and presentation panels illustrating the layout, structural system, and applied sustainability strategies.
ESQUEMASTEXTOPLANOSIMÁGENESPANELES
Design Concept & Strategy
This project presents an innovative high-density housing solution based on space optimization, structural efficiency, and sustainability. The proposal centers on prefabricated modular units, enabling faster construction, cost-effectiveness, and adaptability to diverse needs.
The building arrangement prioritizes cross-ventilation, natural lighting, and urban connectivity to ensure optimal living standards. The site plan strategically orients volumes toward green spaces and social interaction areas, fostering a healthy community environment.
Spatial Distribution & Organization
The development features two high-rise residential towers organized around a central vertical circulation core, optimizing access and spatial distribution. Each floor incorporates modular housing units designed for layout flexibility and interior customization.
Ground and basement levels integrate parking and service areas with natural ventilation systems to ensure adequate airflow in subterranean spaces.
Construction System & Materiality
The project utilizes prefabricated concrete walls to streamline construction timelines while delivering high thermal and acoustic insulation standards. This modular system reduces on-site assembly time, minimizes environmental impact through waste reduction, and enhances energy efficiency.
Lightweight structural elements and perforated façades blend contemporary aesthetics with functionality, while integrated solar shading and passive ventilation systems reinforce the project’s sustainability strategy.
Conclusion
This project exemplifies innovative architectural solutions through efficient design, modular construction, and sustainable practices. It addresses contemporary urban housing demands by delivering functional, comfortable, and adaptable spaces tailored to evolving societal needs.
Text
Diagrams
The diagrams illustrate the modular layout, prefabricated system, and natural ventilation strategy - optimizing both comfort and energy efficiency.
Wind Direction Diagram
The prevailing southeast winds necessitate reinforced structures on wind-exposed facades. This analysis further recommends installing natural or artificial windbreaks to mitigate wind impact while maintaining optimized cross-ventilation throughout the buildings.


Sun Path Diagram
The sun's annual trajectory suggests optimizing building orientation to maximize natural daylight while reducing artificial energy consumption. This is particularly critical for window placement, enabling efficient solar energy utilization.
The site layout reveals opportunities to design outdoor spaces that enhance connectivity and accessibility, such as pedestrian pathways and green areas. An efficient design maximizes available space, improving quality of life and fostering community engagement.
Parcel




Heights
The analysis of building height profiles underscores the importance of maintaining aesthetic and functional coherence in the urban landscape. This helps prevent excessive shadows while preserving key views, ultimately enhancing livability and visual appeal in the urban environment.


Modulation
Base block: Begins with a rectangular volume that defines the building.
Division: Separates into two parts to improve ventilation and privacy.
Sloped cut: Modifies the roof to optimize natural light and aesthetics.
Fragmentation: Splits the floors, allowing better distribution and functionality.
Southern views in the project take advantage of natural light and climatic orientation to enhance thermal comfort. The arrangement of volumes and strategic openings ensures balanced lighting and efficient ventilation, optimizing the livability of the spaces.
Visuals




Natural garage airflow
The parking area's natural ventilation system operates through grilles beneath the benches, allowing warm air to rise and continuously renew. Side openings facilitate airflow even with gentle breezes, ensuring efficient circulation and preventing gas buildup.


Plans
The drawing set illustrates the project's layout, structure, and functionality through floor plans, sections, and construction details that clarify its spatial organization and design strategies.




Site Plan
Project location
Site Implementation
Site-Specific Design Adaptation




Site Plan
Site Design
Section A
Section with Garage




North Elevation
North-facing building view
South Elevation
South-facing building view




East Elevation
A more angled view to see both towers simultaneously
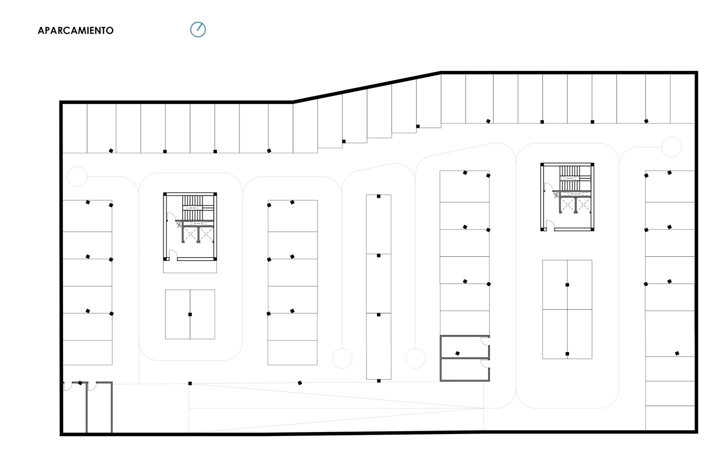
Garage
Typical Garage Floor Plan




Typical Floor Plan
Large-scale plan showing greater detail
Construction Detail
Construction System with Legend
Visuals
Photos of the potential final result








Panels







